Plan: Armaturenbrett per CAD aus HPL fräsen!

  • Guten Morgen,
    habe mir gerade mal Gedanken über ein neues Armaturenbrett gemacht.Nun hab ich mir überlegt,es von einem Bekannten aus HPL (High Pressure Laminate) fräsen zu lassen.Dieser hat in seiner Firma (http://www.g-h-k.de) eine große CAD-Fräse,für die er eine gute Maßzeichnung oder CAD-Daten für das Programm
    Woodwop
    http://www.weeke.de/cms/Dienstleis…F-Schnittstelle
    bräuchte.
    Wenn diese Daten einmal gespeichert sind,könnte er natürlich auch auf Bestellung größere Serien fertigen,wäre dann kein großer Aufwand mehr,falls sich andere Interessenten finden !

    HPL ist eine Art Recyling-Kunststoff,welcher in verschiedenen Dicken und Oberflächen lieferbar ist und auch sehr robust.Beispielsweise Edelstahl gebürstet,Alu poliert oder mit diesen einpolierten Kreisen wäre möglich.

    Also,wer könnte mir dabei helfen,solche daten zu erstellen oder hätte eine genaue Zeichnung?

    Gruß
    GoMeZ

  • es gibt hier im Forum definitiv eine Vorlage für das Armaturenbrett, allerdings meine ich mich daran zu erinnern, das irgendwer mal die passgenauigkeit bemängelt hat.
    dieses Bild könnte man glaube ich über paint shop in format bringen, welches CAD - Tauglich ist.

    Früher hast du Frauen getroffen die haben gekocht wie deine Mutter, heute triffst du Frauen die so saufen wie dein Vater!


    Do you know the meaning of
    ABCDEFG
    A Boy Can Do Everything For Girl.

    Reverse the meaning of,
    GFEDCBA
    Girls Forgot Everything Done & Catches new Boy Again

    Der 70A Ford Lichtmachinen thread:
    https://www.mini-forum.de/showthread.php…rd+lichtmachine

  • Zitat von MiniGP

    es gibt hier im Forum definitiv eine Vorlage für das Armaturenbrett, allerdings meine ich mich daran zu erinnern, das irgendwer mal die passgenauigkeit bemängelt hat.
    dieses Bild könnte man glaube ich über paint shop in format bringen, welches CAD - Tauglich ist.

    :confused: :confused: Neee neee neee - falscher Ansatz....:scream: :scream: :scream:

    Paint Shop ist ein Programm aus dem Kinderhilfswerk - das hat mit CAD soviel zu tun, wie Einstein mit Einhorn...


    Zuerst die Maße abnehmen, und dann ein DXF draus machen.

    Und ja, bei einer Vorlage sollen die Maße nicht stimmen, daher ist komplett selber machen angesagt.

    Um CAD betreiben zu können, benötigt es ein Datenformat, das "Bilder" in Kurven beschreibt und nicht in Pixeln.

  • Diese Vorlage hatte ich auch schonmal,leider nur für das MK1-Armaturenbrett.Wollte erstmal eines für meinen 91er bauen,aber mit ausmessen und Schablone bauen sieht es schlechtaus,da bei mir mom. gar kein Arm.brett vorhanden ist.Am besten wäre es,ein qualitativ hochwertiges (Rokee?) und gut passendes Holz-Brett zu vermessen,oder?
    Möchte jetzt halt ungern mit einer Papp-Schablone rumbastel,da ich für sowas wenig begabt bin,mir liegt da eher die grobe (Blech-) Arbeit.....:D

  • ich hab das als CAD File...

    Allerdings nicht getestet ob 100 % passt ! Sollte nochmal getestet werden.

    Hab meins hier mit ner 1:1 Fräse schneiden lassen...war noch was einfacher..

    Gruß
    Chris

  • Zitat von GoMeZ

    Diese Vorlage hatte ich auch schonmal,leider nur für das MK1-Armaturenbrett.Wollte erstmal eines für meinen 91er bauen,aber mit ausmessen und Schablone bauen sieht es schlechtaus,da bei mir mom. gar kein Arm.brett vorhanden ist.Am besten wäre es,ein qualitativ hochwertiges (Rokee?) und gut passendes Holz-Brett zu vermessen,oder?
    Möchte jetzt halt ungern mit einer Papp-Schablone rumbastel,da ich für sowas wenig begabt bin,mir liegt da eher die grobe (Blech-) Arbeit.....:D


    Nee, Rookee hat an den Verbindungen "leichte" Langlöcher - daher am besten an der Karosse abnehmen, oder willst du ein 3 teiliges Mitteltachoarmaturenbrett nachbauen? Dann Ja.
    Aber bedenke, die Rookees haben an den äußeren Teilen innen einen Wulst (Krümmung), der ist verdammt schwer nachzumachen, wenn nacher auch furniert werden soll. War schon ein paarmal beim Rookee Chefholzwurm und weiß, warum die so teuer sind... Ist wirklich ne Menge Arbeit....

    Pappschablone ist aber ein guter Weg, um ein einteiliges hinzukriegen.

  • rechtslenker:
    Genau,die Daten sollen hinterher ins +.dxf-Format gebrachtwerden,die Datei könnte aber wahrscheinlich mit exakten Maßen von meinem Kumpel erstellt werden,bräuchte aber erstmal eine sehr exakte Maßzeichnung.
    Dann wär es kein Problem,am Wochenende da mal ein paar Platten in die Maschine zu schmeissen...Dekor und Oberflächen gibt es in Hülle und Fülle,da ist für jeden Geschmack was dabei!
    Fände ich zumindest besser,als mit Sichsäge und MDF rumzuwerkeln,so ein exakt produziertes CNC-Teil hat schon eine höhere Wertigkeit......

    GoMeZ

  • kurz mal gefragt...
    Verstehe ich das korrekt?
    Es müsste eine CAD-Zeichnung angelegt werden, diese als DXF datei speichern
    und anschliessend in das Prog wooWOP eingelesen werden?

    Wenn ich eine gute Vorlage bekommen könnte, mit gut meine ich genau,
    hätte ich die möglichkeit in einem CAD Programm eine Zeichnung dazu zu erstellen,
    und diese als .dxf datei zur Verfügung zu stellen.
    Anschliessend müsste dann natürlich, um die Passform zu klären, erstmal eines
    gefräst werden zum testen.
    Ich habe aber ehrlich gesagt keine Lust mein Armaturenbrett auszubauen um die Maße selbst zu nehmen.
    Auch habe ich besagtes Programm woodWOP nicht, ist dieses notwendig?
    Meiner erfahrung nach könnte eine reine .dxf datei ausreichen um diese in die CNC-Fräse einzulesen.
    Also wer hat die möglichkeit mir eine gute Vorlage zu liefern?
    Was würde ein solches Armaturenbrett kosten?

  • @ Gomez, frag den ChriLu, der hat die Datei ja schon ;)

    @ Jimselbst - .DXF ist ein Format, das jedes CAD Programm lesen / importieren kann - ähnlich wie textdaateien und .rtf.

  • Zitat von rechtslenker

    @ Jimselbst - .DXF ist ein Format, das jedes CAD Programm lesen / importieren kann - ähnlich wie textdaateien und .rtf.


    Dessen bin ich mir wohl bewusst..
    Die frage ist ob das proggi woodWOP nötig ist, weil dieses habe ich nicht.

  • JimSelf: Ah,jetzt kommt Bewegung in die Sache!
    Die Programmierung könnte wie gesagt auchmein Kumpel (oder seine Angestellten)machen,aber fertige Daten wären mir natürlich auch Recht.

    Über Preise hab ich mich noch nicht schlau gemacht,kann aber seinen Maschinenpark nutzen und mit ihm am Wochenende mal ein paar Prototypen fertigen. Wollte jedenfalls kein Geschäft mit den Dingern machen,also Materialpreis + Bier wäre in Ordnung!Die Zeit hätte ich und Spaß daran auch.
    Quadratmeter in 13mm Stärke und Edelstahl Oberfläche liegt wohl so bei 30Teuro.....mal sehen.Halterunge muß man sich dann natürlich selbst basteln,darüber hab ich noch nicht nachgedacht.Würde wohl was mit Blechklammern machen oder Laschen an diese beiden Blechwulste unter den oberen und unteren Abdeckungen schweissen

  • Zitat von JimSelf

    Dessen bin ich mir wohl bewusst..
    Die frage ist ob das proggi woodWOP nötig ist, weil dieses habe ich nicht.


    Eventuell braucht das "PROGRAMM", oder eine Alternative der Schreiner - nicht der Erzeuger der Datei.

    Ps: Beim Wort "Proggi" krieg ich Plaque und Hautausschlag.

  • Thema CAD...

    ein gescheites CAD-Programm (zB. ACAD) kann Liniengrafiken in DXF konvertieren. Es kann sein, daß der Konturzug im ACAD manuell nachbearbeitet werden muß (Ecken, Radien verbinden).

    POWER!!!!!!!!!!!!
    Jeremy Clarkson

  • Also WoodWop wird nicht zum erstellen des Plans benötigt,dieses steuert nur die Fräse. Es muß bloß mit den passenden .dxf-Daten gefüttert werden

  • das klingt doch mal ganz interessant!!! werde mal weiter beobachten was das hier gibt! :D würde gerne helfen, aber ich habe gar keine a-brett zum vermessen! :rolleyes: :D cad hätt ich, aber das nützt ja nicht viel!? :D

    -----------------------------------------------------------------------------
    Mein Name: Taner Taskesen
    Mein Mini: MK V, SPI-Vergaserumbau + Extras...
    Mein Kennzeichen: AW-TT-90(4/10)
    -----------------------------------------------------------------------------
    ich fühl mich wie ein einbeiniger bei einem wettbewerb für's arschtreten... :D
    -----------------------------------------------------------------------------
    "Der Dativ ist dem Genitiv sein Tod" :D
    -----------------------------------------------------------------------------

  • ich schick später mal ein Bild von meiner "neuen" Halterung...mir ging die Fingerbrecherei auch auf den Nerv.. ist zwar von außen zu sehen, aber ich finde es "erträglich" ;)

    13mm hört sich schon gut an...allerdings find ich das schon fast wieder etwas zu dick..
    Hab jetzt 9mm drinne...das passt sich etwas besser an und zieht sich tiefer in den Rahmen ein.. trifft meinen Geschmack etwas besser..

    Gruß
    Chris

  • Zitat von rechtslenker


    Ps: Beim Wort "Proggi" krieg ich Plaque und Hautausschlag.

    :D

    Ok, ist dann hiermit aus meinem Wortschatz gestrichen.. :cool:

    ChriLu
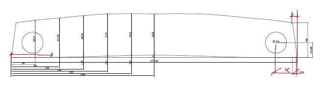
    Die .pdf datei ist schon ok, allerdings wären so eins zwei Maße mehr schon nicht schlecht.
    z.b. der Abstand des Lüftungshutzen Mittelpunktes von links bzw. rechts
    Ausserdem natürlich der Ausschnitt für die Armaturen, wenn gewünscht.

    Zitat von J&A


    ein gescheites CAD-Programm (zB. ACAD) kann Liniengrafiken in DXF konvertieren. Es kann sein, daß der Konturzug im ACAD manuell nachbearbeitet werden muß (Ecken, Radien verbinden).


    Da habe ich schlechte Erfahrungen mit gemacht.
    Geht neu zeichnen meistens schneller und genauer.

  • Zitat von JimSelf

    :D

    Ok, ist dann hiermit aus meinem Wortschatz gestrichen.. :cool:

    ChriLu
    Die .pdf datei ist schon ok, allerdings wären so eins zwei Maße mehr schon nicht schlecht.
    z.b. der Abstand des Lüftungshutzen Mittelpunktes von links bzw. rechts
    Ausserdem natürlich der Ausschnitt für die Armaturen, wenn gewünscht.


    Noch Ansprüche ??? :D Nee sorry...aber ich hab nur Brett vermessen...warum seht Ihr später ;)

    Gruß
    Chris

Jetzt mitmachen!

Du hast noch kein Benutzerkonto auf unserer Seite? Registriere dich kostenlos und nimm an unserer Community teil!