Danke!
Elektronische Zündung
-
-
Alles anzeigen
Magnet zu groß für die Bolzen
AliExpress-Einkäufer | 02 Dez. 2025
Hilfreich (0)
Magnet zu groß für 25d4
R***t | 02 Dez. 2025
-
Das schrieben die Käufer in den Kommentaren…
-
Ich habe heute meinen Countryman auf kontaktlos umgebaut, ging alles reibungslos.
Danach an den Moke...mit Positiv Earth!
Dieses Kit https://de.aliexpress.com/item/100501023…ayAdapt=glo2deu
Da geht nix.
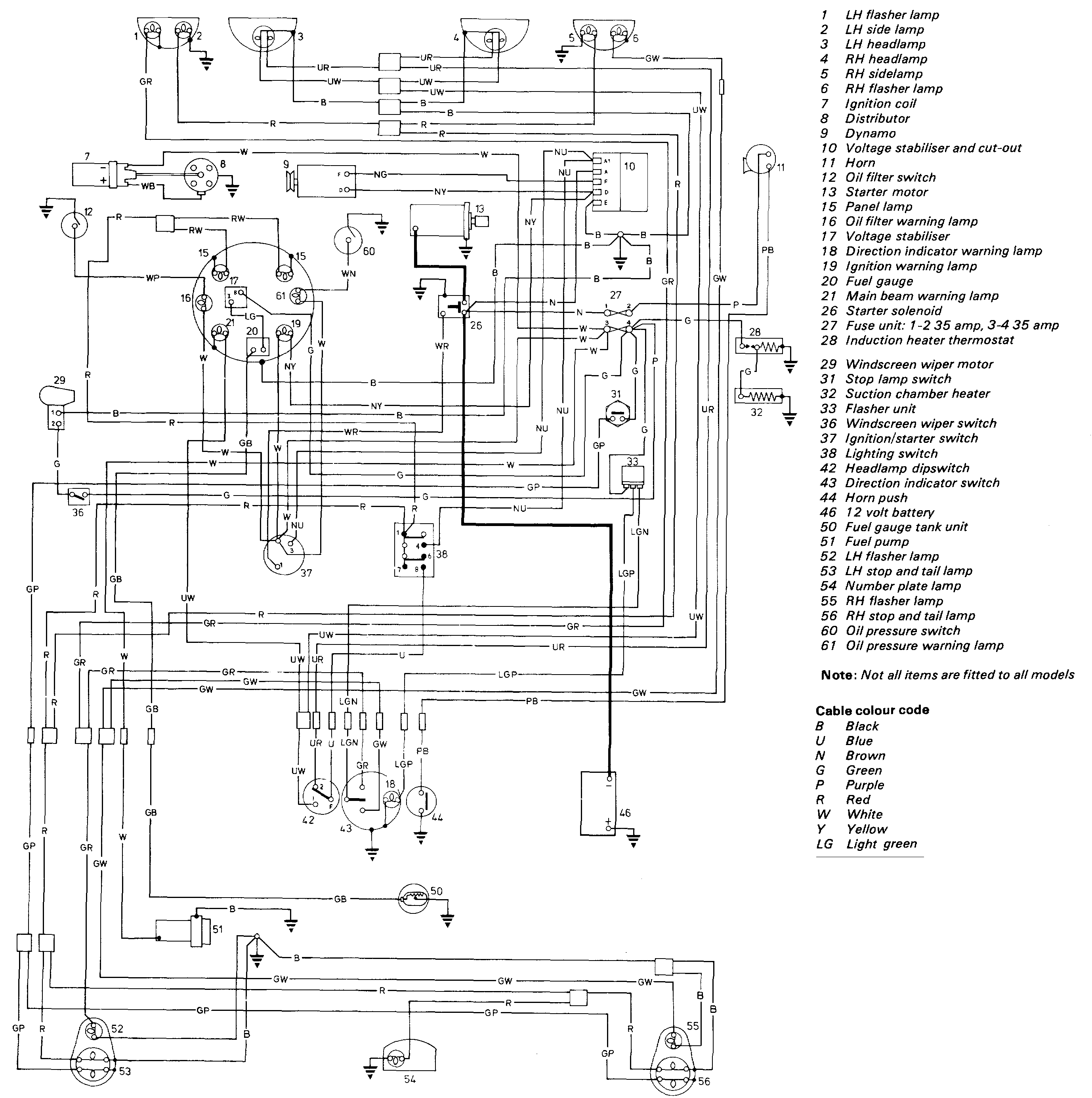
Ist original nach diesem Schaltplan verkabelt gewesen
Kann ich das Kit falsch herum angeschlossen haben und es damit geschossen haben?
Von den Kabelanschlüssen passt es halt nur so das das schwarze weiter an das Weiss/Schwarze was normal an den Unterbrecher geht angeschlossen wird und das rote an den andern Anschluss der Zündspule wo Weiss dran ist.
Habs danach auch mal mit andresrum angeschlossen, aber auch so ging es nicht...ist von den Steckern auch nicht so gedacht.
Kann ich das Kit mit Netzteil und Multimeter und dem Magnetring durchmessen ob es noch tut?
Wo ist mein Denkfehler?
Oder einfach Schrott gekauft und selber schuld?
Danke
Gruß
Samuel
-
Es gibt extra Kits für positive Masse.
-
Es gibt extra Kits für positive Masse.
Das von Samuel verlinkte Kit ist für positive Masse

Zumindest steht da "...für Lucas 25D mit positiven Erd..." in der Beschreibung...
Gruß, Diddi
-
Ja laut Beschreibung für Positiv Earth...aber wer weiß...kann ich das messen?
-
War grad nochmal am Auto...an der Zünspule ist das weiße Kabel an + und weiss/schwarz an - ...laut Schaltplan gehört es andersrumm...war aber seit der Restauration immer so und lief...mit Unterbrecher
-
War grad nochmal am Auto...an der Zünspule ist das weiße Kabel an + und weiss/schwarz an - ...laut Schaltplan gehört es andersrumm...war aber seit der Restauration immer so und lief...mit Unterbrecher
Wenn die Spule falsch herum angeschlossen ist, hat sie etwas weniger Leistung, zündet aber trotzdem...

Wenn da durch aber das Zündmodul beim ersten Versuch auch falsch herum angeschlossen war, könntest du es "gehimmelt" haben...

Das ist allerdings Elektronik und ich kann nicht sagen, ob man das durchmessen kann. Mein Steckenpferd ist die Mini-Elektrik...

Gruß, Diddi
-
Wie rumm wird das Zündmodul denn richtig angeschlossen? Kabelfarben oder Steckkontakte...passt doch so nicht zueinander, oder?
-
Wie rumm wird das Zündmodul denn richtig angeschlossen? Kabelfarben oder Steckkontakte...passt doch so nicht zueinander, oder?
War da keine Einbauanleitung / Schaltplan dabei?...
Habe bisher nur Accuspark und Petronix Ignitor eingebaut. Da waren Anleitungen dabei... Bei Accuspark war rot immer + für Versorgung und schwarz ging an die Spule -
Gruß, Diddi
-
Nein kein Schaltplan...
Aber bin dem ganzen denke auf die Spur gekommen.
Habe es mit Netzteil und Multimeter durchgemessen.
Wenn ich 12V auf rot gebe und Masse auf die Grundplatte, dann kann ich mit dem Magnetring von schwarz auf Grundplatte durch schalten.
Wenn ich aber 12V auf die Grundplatte gebe und Masse aufs rote Kabel, dann kann ich nicht von schwarz auf Grundplatte durch schalten.
Habe es mehrfach hin und her gesteckt, also zerschießen tut man auch nix, aber die Info in der Beschreibung das es für pos. Earth sein soll schient nach meinem Stand einfach falsch zu sein...in aber nur Maschinenbauer...keine Blitzbirne.
Weches Kit würdet ihr empfehlen für pos. Earth?
-
Ich hatte bisher mit Accuspark nur positive Erfahrungen...
Kit 4A für 25D4 positive Earth... https://accuspark.co.uk/products/kit-4…-positive-earth
Gruß, Diddi
-
Danke, ist geordert...werde berichten
-
Bei den Accuspark Kits, die ich verbaut habe (schon `ne Weile her, gehen nie kaputt) war ein kleiner Faltzettel mit Einbauanleitung in der Verpackung. Erkennt man bei diesem Kit nicht. Vielleicht mittlerweile auf der Rückseite aufgedruckt.
Wenn nicht, kann man sie anmailen.
In dem Video erzählt er auch etwas über den Einbau, sowie positive Earth. Positive Earth Kits haben weißes und schwarzes Kabel. Negative Earth dagegen rotes und schwarzes Kabel...

Er weist dafür auch auf den korrekten Anschluss der Spule hin...

Edit: Mittlerweile als pdf auf der Seite... https://www.multisparkignition.co.uk/accuspark/www/…nstructions.pdf
Gruß, Diddi
-
Jetzt mitmachen!
Du hast noch kein Benutzerkonto auf unserer Seite? Registriere dich kostenlos und nimm an unserer Community teil!